Sản phẩm
SF sẽ mở ra cánh cửa dẫn đến tương lai
áp lực chống gió, tấm chắn nhiệt
áp lực chống gió, tấm chắn nhiệt
1.2T Chèn cấu trúc áp suất gió bên trong tấm nhôm Nó được chế tạo để phù hợp với mục đích sử dụng bằng cách sử dụng máy ép gió hoặc nạp (máy cắt nhiệt) bọt urethane
Thông số kỹ thuật chụp áp suất gió
Tính năng chống gió: 45 M/SEC
tấm chắn nhiệt
tỷ lệ lưu thông nhiệt: ≤ 1.815 ~ 0.777 W/㎡·K (trở xuống) (Tùy theo từng loại cửa chớp khác nhau)
Các trường hợp thi công
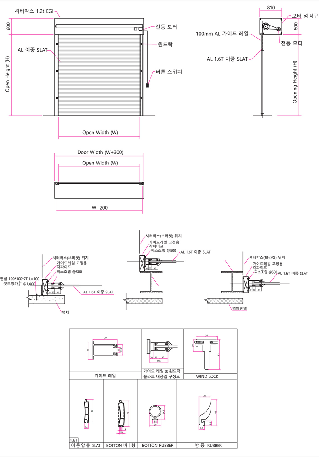
Bản vẽ sản phẩm
Thông tin công ty
tên công tyNameSF Co., Ltd.
tên người đại diệnSanghee Lee
số đăng ký kinh doanh373-88-00702
sự tiếp xúc
Địa chỉKCN số 5, TP. Gumi, Gyeongbuk 36-11
Điện thoại+82-1800-9906 / +82-54-974-8810
máy fax+82-70-7614-3255
thư điện tửsfdoor17@hanmail.net
SNS
Bảo hành