Sản phẩm
SF sẽ mở ra cánh cửa dẫn đến tương lai
cửa overhead
cửa overhead
Các trường hợp thi công
thông số kỹ thuật sản phẩm
Type Standard Lift High Lift Vertical Lift
Headroom 650mm 650mm ~ DOH+200mm DOH + 200mm
Sideroom 175mm (300mm for motor) 175mm (300mm for motor) 175mm (300mm for motor)
Loại cửa overhead
Các trường hợp thi công
Phương pháp tiêu chuẩn
Phương pháp nâng cao
phương pháp nâng thẳng đứng
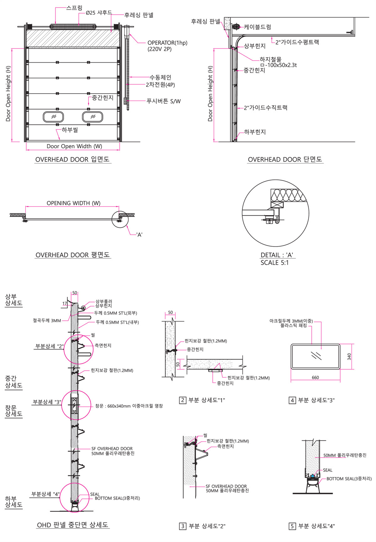
Bản vẽ sản phẩm
Thông tin công ty
tên công tyNameSF Co., Ltd.
tên người đại diệnSanghee Lee
số đăng ký kinh doanh373-88-00702
sự tiếp xúc
Địa chỉKCN số 5, TP. Gumi, Gyeongbuk 36-11
Điện thoại+82-1800-9906 / +82-54-974-8810
máy fax+82-70-7614-3255
thư điện tửsfdoor17@hanmail.net
SNS
Bảo hành