제품소개
에스에프는 미래로 가는 문을 엽니다.
내풍압, 단열셔터
SHUTTER DOOR
1.2T 알루미늄 슬랫 내부에 내풍압 구조를 삽입(내풍압셔터에 하거나 우레탄폼을 충진(단열셔터)하여 용도에 맞도록 제작합니다.
내풍압셔터 사양
내풍압 성능 45M/SEC
단열셔터
열관류율 1.815 ~ 0.777W㎡ · K이하(셔터 종류에 따라 상이합니다)
시공사례
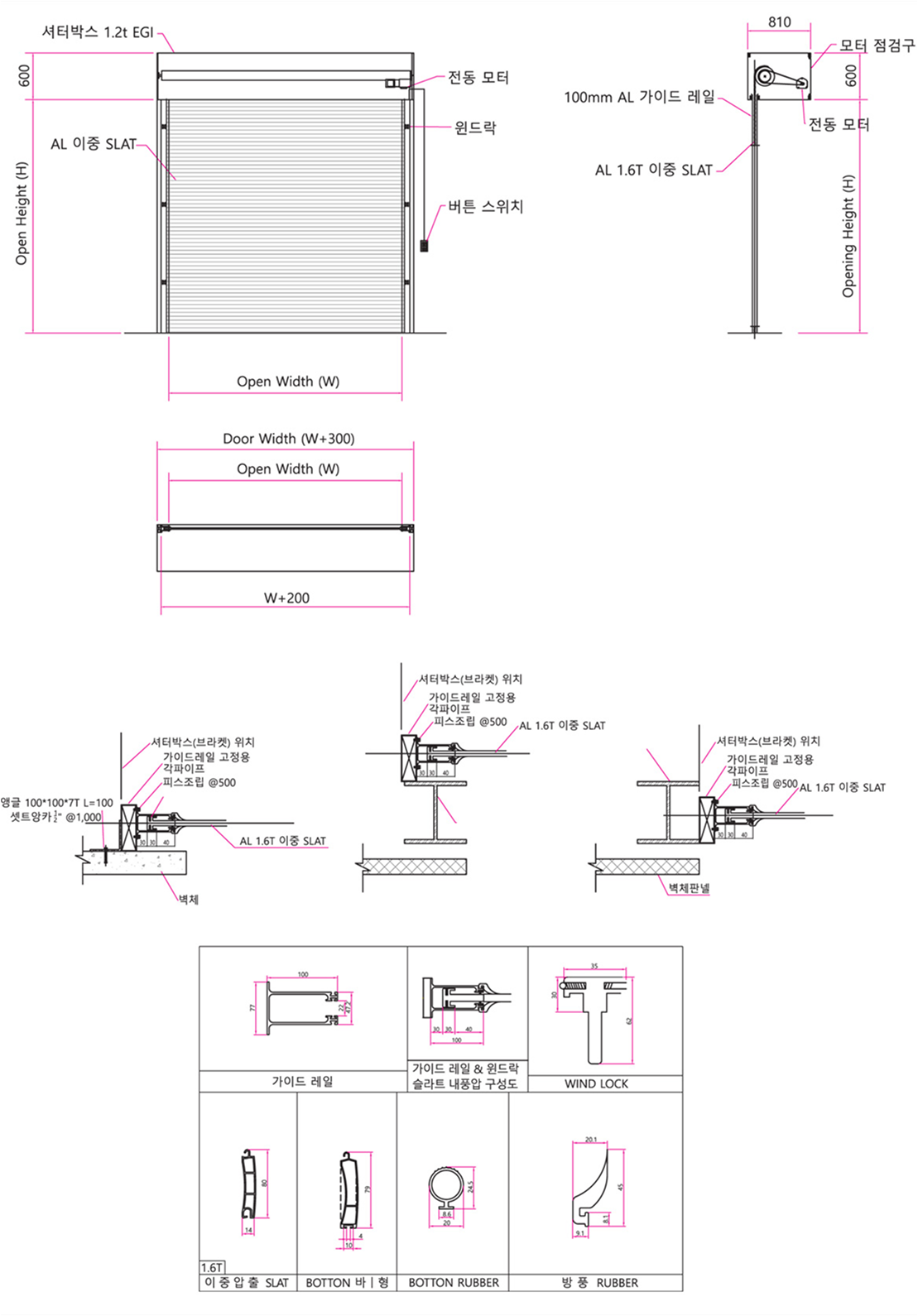
제품 도면
Company Info
회사명에스에프 주식회사
대표자명이상희
사업자 등록 번호373-88-00702
Contact
본사 주소경북 구미시 5공단7로 36-11
고객센터1800-9906 / 054-974-8810
팩스070-7614-3255
e-mailsfdoor17@hanmail.net
SNS
Warranty