제품소개
에스에프는 미래로 가는 문을 엽니다.
오버헤드 도어
OVERHEAD DOOR
시공사례
제품 사양
종류 Standard Lift High Lift Vertical Lift
Headroom 650mm 650mm ~ DOH+200mm DOH + 200mm
Sideroom 175mm (300mm for motor) 175mm (300mm for motor) 175mm (300mm for motor)
오버헤드 도어 종류
종류별 시공사례
스탠다드 방식
하이리프트 방식
버티컬 방식
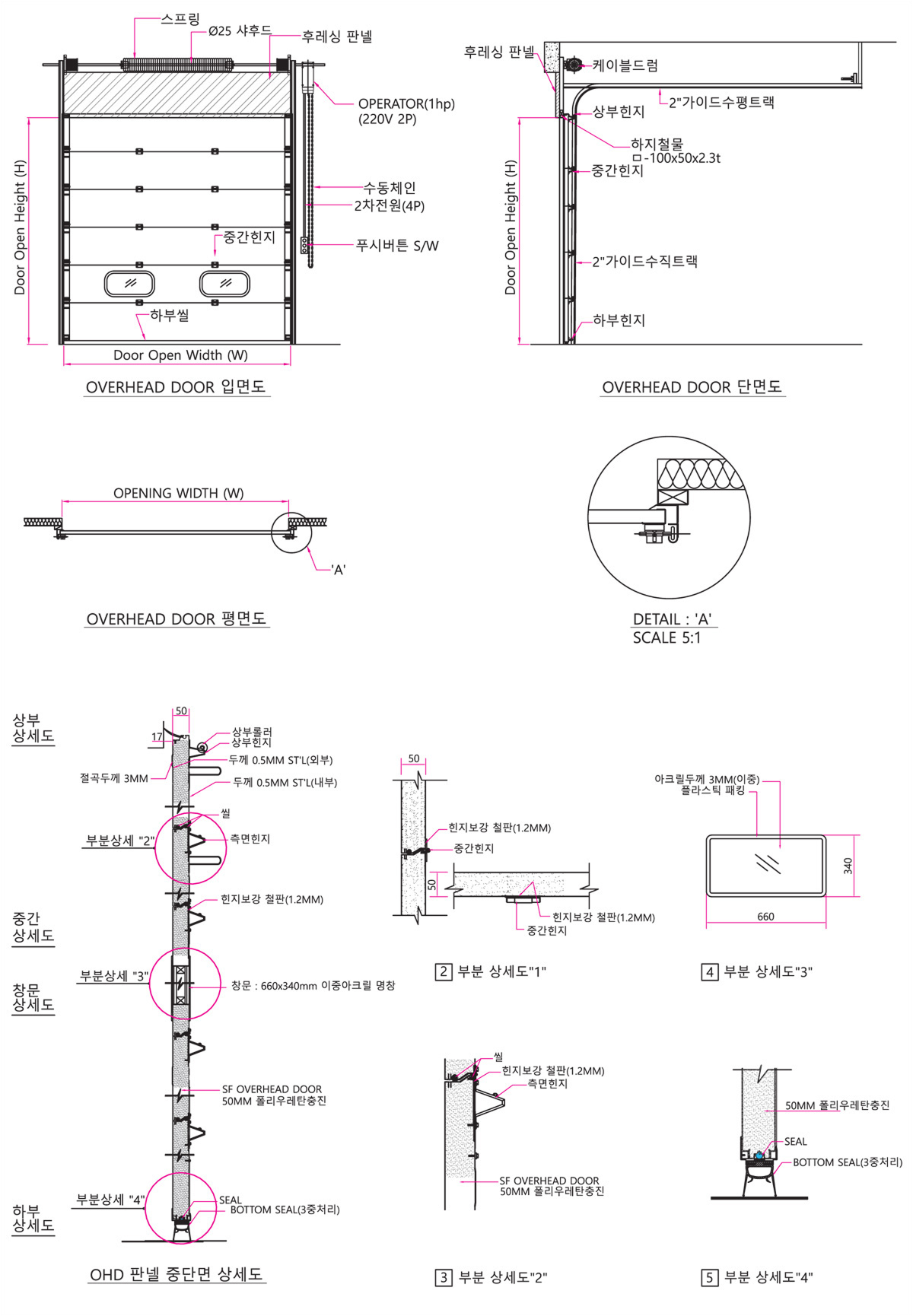
제품 도면
Company Info
회사명에스에프 주식회사
대표자명이상희
사업자 등록 번호373-88-00702
Contact
본사 주소경북 구미시 5공단7로 36-11
고객센터1800-9906 / 054-974-8810
팩스070-7614-3255
e-mailsfdoor17@hanmail.net
SNS
Warranty